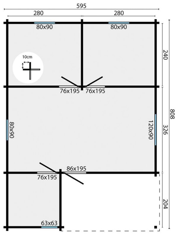
HC Huis & Tuin Tuinhuis Jane 595x808x317cm. Tuinhuis Jane is een van de grotere tuinhuizen en is met zijn afmetingen van ca. 6 x 8 meter. Tuinhuis Jane beschikt over een indeling met 4 kamers plus een kleine veranda aan de voorkant van ca. 285 cm breed en 204 cm diep.
Dankzij de overdekte veranda aan de voorzijde, biedt Tuinhuis Jane extra overdekte ruimte om heerlijk buiten te zitten op bijvoorbeeld een kleine lounge set of tuin set. Zo kunt u het hele jaar beschut genieten van deze royale houten vakantiewoning Jane.
Tuinhuis Jane is vervaardigd van langzaam gegroeid Scandinavisch vuren wat zorgt voor een stabiele en duurzame tuinhuis. Houten Tuinhuis Jane is maar liefst 595 cm breed, 808 cm diep en heeft een nokhoogte van ca. 317 cm.
Door zijn opdeling met veranda en 4 kamers met interne scheidingswanden van eveneens 44 mm dikte en enkele dichte deuren is Tuinhuis Jane perfect te gebruiken als vakantie chalet, gastenverblijf of als thuiskantoor.
Via een enkele deur met dubbel glas aan de voorkant onder de veranda van Tuinhuis Jane bereikt u de ruime midden kamer. Zowel links als rechts van de grote midden kamer bevindt zich een vast raam wat zorgt voor lichtinval. Deze ruimte biedt dan de mogelijkheid tot het plaatsen van bijvoorbeeld een bank, tafel of loungehoek.
Vanuit de grote midden kamer bereikt u via enkele dichte deuren twee achterkamers, die bijvoorbeeld gebruikt kan worden als kantoorruimte of slaapkamer. Beide achterkamers zijn qua formaat identiek en voorzien van een vast raam die zorgt voor lichtinval.
Via de grote midden kamer bereikt u tevens via een enkele dichte deur de kleine voorkamer. Deze kleine voorkamer bevindt zich aan de voorzijde van Tuinhuis Jane en biedt mogelijkheden tot plaatsen van toilet en/of douche. De kleine voorkamer beschikt tevens over een klein vast raam.
Tuinhuis Jane – wanddikte 44 mm en dubbel glas
Tuinhuis Jane beschikt aan de voorkant over een enkele deur met glas, over 3 enkel dichte deuren en over maar liefst 5 stuks vaste ramen. Tuinhuis Jane is gemaakt van hoogwaardig Noord-Europees vuren met een wanddikte van 44 mm. De enkele deur aan de voorkant van dit tuinhuis en 5 stuks vaste ramen worden standaard geleverd met dubbel glas en losse roedes.
Product specificaties
Afwerking Geschaafd
Behandeling Onbehandeld
Dakbedekking inbegrepen Optioneel
Daktype Zadeldak
Deurtype Enkele deur
Dikte glas 3-9-3mm
Draairichting deur Links scharnierend
Droging Gedroogd
Glas Isolatieglas
Hoofdmateriaal (gedetailleerd) Vuren
Inbegrepen Cilinderslot
Materiaal Hout
Plaats van de overkapping of luifel Met overkapping zijkant
Roedes Losse roedes
Pakketafmetingen
Breedte 1200 cm
Lengte 6000 cm
Hoogte 1480 cm
Gewicht 2910 kg
Secundaire afmetingen
Fundering 575 x 788 cm
Dikte wand 44 mm
Nokhoogte 317 cm
Oppervlakte overkapping 8,6 m²
Afmeting hoekverbinding 10 cm
Vloeroppervlakte binnen 36,7 m²
Totale oppervlakte 45,3 m²
Inhoud (m3) 91,7 m³
Dakoppervlakte 57,3 m²
Primaire afmetingen
Lengte 595 cm
Breedte 808 cm
Product eigenschappen
Aantal deuren 4
Geschikt voor dakpannen Nee
Aantal ramen (te openen) 5
Aantal ruimtes 4
Marketing
Extra product informatie Tip bij het gebruik van dakpanprofielplaten raden wij aan om 8 stuks van artikel p006799 te bestellen, te gebruiken als brede windveer


















